Comment installer des SPRING4 sur une toiture terrasse ?
Vous pouvez retrouver les systèmes de pose compatibles mécaniquement ou validés par une ETN à travers ce lien 
Il existe différents modes de fixation sur toiture terrasse :
- les systèmes de pose sur étanchéité bitumineuse/membrane/ PVC-TPO disposant d’un ATEC avec l’étanchéité de la toiture et d’une ETN avec les panneaux solaires. 
- les systèmes de pose sur potelets métalliques respectant le DTU 43.1 toiture terrasse 
- les systèmes de pose lestés sur revêtement d’étanchéité 
Installation orientation portrait
Dans le cas d’une toiture en terrasse certaines précautions sont à prendre :
La pose des panneaux en portrait est très largement recommandée pour garantir un montage simple et efficace des panneaux.
Il faut s’assurer que le manifold (collecteur bas) ne soit pas en conflit avec le sol : le système de pose à choisir de façon à ce que le manifold bas de panneau soit rehaussé
figure 2 : positionnement des manifolds sur le panneau SPRING
Le système de pose doit respecter l’une des 2 méthodes d’installation des rails de pose ci-dessous. (cf. notice d’installation)
| DSTFxxx-108M10TB-03 ; DSTNxxx-108M10TB-03 ; DSTIxxx-108M10TB-03 DSTFxxx-108M10RTB-03 ; DSTNxxx-108M10RTB-03 ; DSTIxxx-108M10RTB-03 | ||
|---|---|---|
| Méthode d'installation | 4 étriers sur le long côté | 4 étriers sur le petit côté | 
| Installation | ||
| Position des étriers | ( 1/5*L-50 ) < S < ( 1/5*L+50 ) | 0 < H < 1/4*W | 
| Charge maximale de test | 6600Pa en positif, 3600Pa en négatif | 2400Pa en positif, 1600Pa en négatif | 
| Charge maximale de conception | 4400Pa en positif, 2400Pa en négatif | 1600Pa en positif, 1600Pa en négatif | 
Solution 1 : 4 étriers sur le long côté
La solution 1 correspond à une position des étriers comprise entre 294 mm et 394 mm sur les grands côtés du SPRING4 425.
Cette solution correspond à un montage classique des étriers afin de garantir une bonne tenue des panneaux lorsque des charges importantes sont appliquées +6600 Pa/ - 3600Pa (neige, vent).
figure 3 : position basse minimum du rail pour installation SPRING (grands côtés)
figure 4 : hauteur du rail bas en fonction du type de panneau
La position des étriers restreint le nombre de systèmes compatibles. Il est également possible d’installer les panneaux sur potelets métalliques afin d’éviter toute zone de conflit entre le manifold et l’étanchéité de la toiture.
Solution 2 : 4 étriers sur les petits côtés
La solution 2 correspond à une position des étriers sur les petits côtés du cadre, plus précisément au niveau des coins du cadre photovoltaïque.
Cette solution garantit une bonne tenue des panneaux avec des charges moins importantes que pour la solution 1.
Cependant cela permet une compatibilité de nos panneaux avec une plus grande variété de systèmes de pose.
figure 5 : position basse minimum du rail pour installation SPRING (petits côtés)
figure 6 : hauteur du rail bas en fonction du type de panneau
Exemple de système de pose avec rails pouvant être installés sur les petits côtés du cadre :
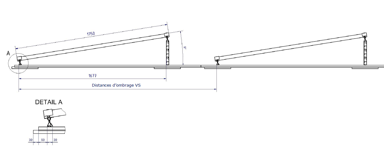
figure 7 : Système de pose Schletter fix grid pro - orientation portrait - angle 9°
Mode Paysage
La pose des panneaux en paysage n’est pas recommandée car elle oblige de réaliser des lignes de 1 panneau et donc d’ajouter des Té en entrée/sortie de chaque raccord pour le raccordement à la tuyauterie générale impliquant un surcoût et des pertes de charge plus importantes. Dans ce type d’installation, les raccords inter-panneaux ne sont donc pas nécessaires.
figure 8 : Montage en paysage avec raccordement hydraulique par des Té afin d’éviter la mise en série hydraulique des panneaux
Actuellement, aucune ETN n’a été initiée entre nos panneaux SPRING4 et des systèmes de pose en paysage uniquement.
Pour aller plus loin : Peut-on installer des panneaux Dualsun SPRING sur plusieurs pans de toiture ?










